281 Jefferson Avenue
281 Jefferson Avenue
SEE ALL PHOTOS
281 Jefferson Avenue
281 Jefferson Avenue
Sold

281 Jefferson Avenue

281 Jefferson Avenue, Brooklyn, NY 11216

$3,250,000
CLASSIC & BRAND NEW BEDFORD-STUYVESANT TWO-FAMILY BROWNSTONE

In contract to the best buyer!

Brand new construction! This ground up, new construction two-family home is the epitome of sophisticated brownstone architecture built for the next 100+ years, on a prime landmarked block in Bedford-Stuyvesant.For decades, the 281 Jefferson Avenue rose to the grandeur it now exemplifies, a rock solid, environmentally sound home, featuring exquisite finishes and fixtures that set home apart from its competition. The unique opportunity awaits you to be the first owner of this amazing property.


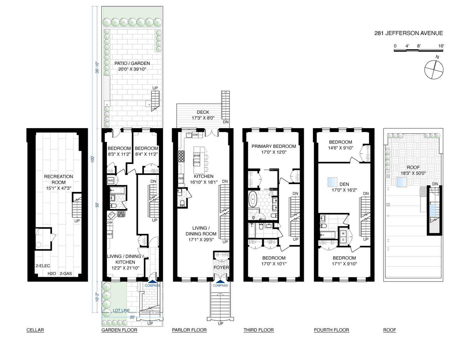
281 Jefferson Avenue is four stories tall, 20 feet wide on an expansive 100 foot lot. The house includes 3,650 interior square feet with 4 floors plus a finished basement (900+ sq ft with no impeding overhead mechanicals), a finished roof deck area and landscaped front/rear yards. The owners triplex features a contemporary floor-through wide open expansive parlor (10'4" ceiling) with a grand gourmet kitchen featuring high end appliances and finishes including a Subzero refrigerator/freezer), an 8 burner Viking gas cooking range with a double oven range and hood. There is a Miele Dishwasher and microwave, wine refrigerator, huge entertainment island, and even a breakfast nook. Additionally, the parlor floor features a half bathroom and full front hall closet to address your storage needs. The Double-wide French doors in the kitchen lead out to the massive tiled deck leading down to the beautifully landscaped garden. Upstairs, the primary bedroom floor offers a luxurious primary suite with a dressing area, marble spa bathroom with a soaking tub, walk-in /multi jet rain shower system, double vanity sinks, and a linen closet. The 2nd bedroom on that floor is quite spacious and includes a gorgeous bathroom as well.


The top floor has two spacious bedrooms sharing a full bathroom, laundry center (with full-sized LG washer/dryer) and a bonus large open space (with skylight) for use as a lounge area, home-office, fitness area or just another den space. Walk up to the roof through a full bulkhead staircase and enjoy rooftop entertainment with views of historic Brownstone Brooklyn with modern conveniences for cooking and entertaining including gas,electric and water hook-ups. The ground floor is a comfortably laid out 2 bedroom/1 bathroom unit, which can be utilized as a rental or easily incorporated into the home with similar aesthetics, a high-end kitchen with stainless steel appliances, and a stackable LG Washer/ Dryer. The space also leads out unto the backyard from the 2nd bedroom.


The basement is fully finished and ready to be used as a recreation space / fitness area which also has state of the art security cameras installed to watch activity from the parlor level. The basement also features split system air conditioning to remain consistent with the rest of the property. The rear yard is accessible from exterior stairs down from the parlor level or from the garden level apartment. The yard was meticulously designed with a landscaped garden with an irrigation system, open area with natural grass and paved seating areas in the back and a shaded area underneath the parlor level deck, giving you multiple seating areas to enjoy.


The property is easily accessible to great restaurants, shopping and boutiques on Fulton Street, Bedford and Tompkins Avenues. Some local favorites such as Peaches Hot House, Chicky's General Store and Mama Fox are all within a couple blocks of 281 Jefferson Avenue. Bedford-Stuyvesant is a vibrant neighborhood and has the largest collection of intact and largely untouched Victorian Architecture in the United States with historic brownstones as the distinguishing feature to this community.

6
beds

6
baths

4,000 Sq.Ft. LIVING AREA

Matthew Kirby-Smith

Matthew Kirby-Smith

Features & Amenities

Interior

  • total bedrooms6
  • Total bathrooms6
  • full bathrooms4
  • half bathroom1
  • Laundry room See Remarks
  • Flooring Hardwood
  • APPLIANCES Dryer, Washer
  • other interior Features Double Vanity, Recessed Lighting

Area & Lot

  • Status Sold
  • Living Area4,000 Sq.Ft.
  • Total Area4,000 Sq.Ft.
  • MLS® IDRLS10977921
  • TypeResidential
  • Architecture StylesWalk-Up

Exterior

  • lot featuresFront Yard
  • AIR CONDITIONINGCentral Air
  • security FeaturesSecurity System
  • other exterior FeaturesBalcony, Private Yard

Financial

  • Sales Price$3,250,000
  • Real Estate Tax $8,808/yr

Work with Kirb Appeal

Matthew Kirby-Smith strongly believes that developing mutual trust and a strong connection with his clients is the foundation for productive and successful relationships. His ability to share generational experiences and stories about the people, places and culture in Brooklyn allows Matt to connect with clients in an authentic way.

Follow Me on Instagram